Woman finally gets her own room after 24 years of sharing -- in service yard of Punggol flat
Yamini Chinnuswamy
The Straits Times
June 13, 2025
When Ms Sasha Marie Shelley and her family were preparing to move into their new Build-To-Order flat in May, the 24-year-old had just one request: to have her own space.
"I've shared a bedroom with my sister for 24 years. We have always been pretty close and still are," says Ms Shelley. "But as we grew older, I started to notice that we were leading very different lives, which were not compatible."
Her sister, who is 30, is an artist who keeps late hours. Ms Shelley, a youth speaker with a local church, has a more conventional schedule.
"If she is up late working on a piece, she might have to keep the lights on, which affects me while I'm trying to sleep so I can wake up early for work," she says.
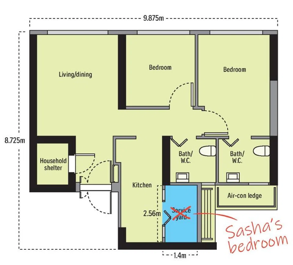
However, their new Punggol flat has just two bedrooms spread across 742 sq ft. Their previous 732 sq ft flat in Toa Payoh also had two bedrooms.
"I considered using the bomb shelter, though I realise that is not advisable and there are restrictions on what you can do with that space," says Ms Shelley.
Her mother's plans to convert the service yard into a home office fell through, making it available as an option for Ms Shelley.
But trying to squeeze all the comforts of a bedroom into the tiny space - which measures just 1.4m by 2.56m - required hours of research, brainstorming and creative problem-solving.
"I spent hours searching online content platforms such as Pinterest, TikTok and YouTube for inspiration," says Ms Shelley.
She even stumbled across a girl in South Korea whose apartment was just 75 sq ft. "I was very inspired by how she made such a small space into something homely and comfortable."
But, for the new Shelley family home, there were practical considerations before Ms Shelley could tackle her own small space.
Service yards are similar to balconies in that there is a clear view of the outside - and vice versa. The Shelleys installed a new window with privacy film, as well as a small light, just 46cm in diameter, with a fan.
"We had to take out the drying rack, and incorporate the washing machine and dryer into the kitchen layout," says Ms Shelley.
"A full ceiling fan would not fit, but at least this provides some ventilation," she adds.
She was also eyeing an Ikea loft bed that came with a desk and storage, such as drawers and shelving.
"I needed a piece of multi-functional furniture like that to make my bedroom work. I liked how it came with these other built-in elements, so I could use the space under the bed to store my things and as a workspace," she says.

There was one hiccup: Even this space-saving loft bed would be a tight fit in the converted yard.
Ms Shelley admits: "No one believed it would fit in the room - not my family and not even the delivery guys. My mum was supportive about me trying to make the service yard work, but she was really worried that I had put all my hopes into this bed that wouldn't even fit."
Nevertheless, she persisted with her vision. "I had to argue my way and just block out the noise. Thankfully, a friend also came over to help me assemble it."
Ms Shelley had to do away with certain parts of the bed, such as the doors for the built-in wardrobe, which would normally swing out. But other aspects - such as the desk, shelves and drawers - could be configured as she had hoped.

The result is a cosy sanctuary where she can sleep, keep her clothes and personal belongings, and take refuge from the outside world.
"My favourite feature of my bedroom is my little prayer space, which is at one corner of my desk and marked out by a piece of fabric.
"I'm usually on the go and busy with life, but it is comforting to be able to sit at that space for a few minutes to say a quick prayer in the morning, or before I head up to the top bunk to retire for the night," she says.
Storage is very limited, despite her enterprise. Still, looking back, one advantage of having to share a bedroom for most of her life is that she never had enough space to accumulate a surfeit of things anyway.

"I am able to keep everything that is mine in my new room. But I had to make other compromises. For instance, the kitchen is right outside my room, just separated by glass doors, so the smells occasionally waft in."
There are also the intermittent sounds of rushing water from the pipes above the bed, which connect to the kitchen, but these have "soothing ASMR vibes", she jokes.
"The one big issue is the lack of air-conditioning, which I prefer to have as I get rashes easily from sweating," adds Ms Shelley.
She could not install an air-conditioning unit due to space constraints, so she is trying to figure out other ways to cool and ventilate the area. "We might place another wall fan in the corner of the ceiling."
She is also looking into options for mosquito netting. But, overall, she loves her private nook.
"It's so nice to have my own personal space for the first time in my life, which I can style and maintain according to my preferences. My sister has offered to let me sleep in her room or use it if I want, but I love my own little room and don't see any need for that."
Her mother, Mrs Ruby Tan-Shelley, a trainer with the People's Association and who is in her 50s, is pleased to have been proven wrong. "I'm proud and happy to see how she has made such a small space work for her."
Ms Shelley's father Michael Shelley, 68, is an entrepreneur.

Meanwhile, Ms Shelley's sister Talya Jane has declared the room to be "comfortable and cosy".
Ms Sasha Shelley's friends are excited for her to have her own space, even if it is a bit too small for her to have them over.
In contrast, the responses on social media - where she posted photos and a video of her service yard bedroom - have been mixed.
"Some people were quick to make judgments on the situation," she says. For instance, in the comments, one person asked why her family did not "just buy a bigger house with more rooms".
But many others were curious about the pros and cons of using such a compact space as a bedroom, Ms Shelley adds.
"I have even been getting private messages about where I bought certain items, which I have been more than happy to share."
It is not a set-up that will work for everyone, but she is content with her snug space. "Having my own room was one of my biggest dreams, and I am just excited and grateful to finally have that."

View more photos in the gallery.

See something interesting? Contribute your story to us.

